Cottage in the forest

Апарт-готель

Апарт-готель із професійним управлінням і моделлю пасивного доходу. Повний сервіс для гостей: ресепшн, прибирання, бронювання та підтримка 24/7. Формат для інвесторів, які хочуть отримувати дохід без операційної рутини.

ПЕРЕВАГИ ТА

ХАРАКТЕРИСТИКИ АПАРТ ГОТЕЛЮ AIRY

Площа володіння
41 м²
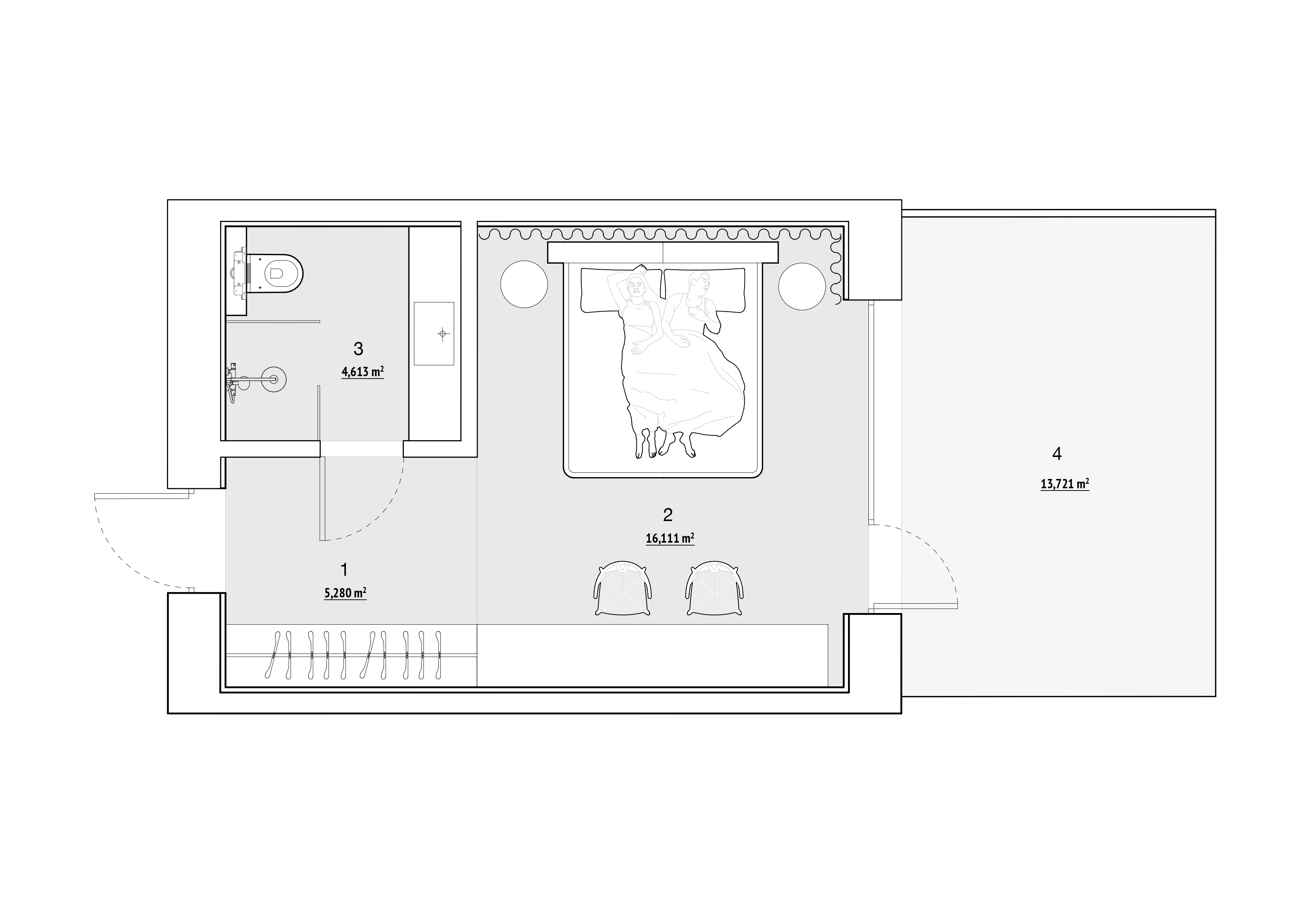
Площа апарту
27 м²
Тераса
14 м²
Поверхи
3
Висота стель
2.9 м
Комфорт
тепла підлога, велика тераса
Рентабельність
орієнтовно від 7 років
Дохідність інвестиції
від 8-10% річних

ВІРТУАЛЬНА ПРОГУЛЯНКА ПО АПАРТ ГОТЕЛЮ

АПАРТ ГОТЕЛЬ У 3D

Актуальний статус: Доступний

Можлива розстрочка та пакет «під ключ».

ПОГЛЯД ЗГОРИ

ПЛАН І РОЗТАШУВАННЯ

ПЛАН АПАРТ ГОТЕЛЮ
НА ГЕНПЛАНІ
КОНТАКТИ

ГОТОВІ ОБРАТИ?

Отримайте повну презентацію проєкту, фінансову модель та персональний розрахунок доходності — залиште свої контакти.

+38

Натискаючи кнопку, ви погоджуєтесь з умовами обробки персональних даних.